Location Local commercial 34000, MONTPELLIER france
2 332 € /
Mois
charges incluses
Descriptif du bien
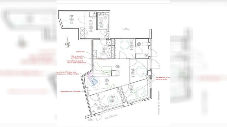
Dans le quartier affaire au sud de Montpellier, secteur Pompignane deux pas de l'hôtel de région. Un local en RDC de 81m2 m2 prêt à l'emploi pour des bureaux ou une entreprise de prestation. Dans un immeuble bourgeois. Cet espace bénéficie d'une atmosphère professionnelle dans un environnement de qualité et sur un axe de visibilité maximum. Loyer 1743.33EUR ht/hc par mois soit 2092EUR ttc par mois. Provisions pour charges de 200EUR/ht par mois soit 240EUR ttc par mois. Frais d'agence charge acquéreur de 4183.33EUR ht soit 5020EUR ttc. Youssef Addah Agent Commercial Hérault Tel: 06 74 17 00 18 Inscrit RCS de Montpellier 490 455 284 Côté France, Agence immobilière - Réseau immobilier Franco-Belge. Achat - vente - à vendre - acheter - investir www.cotefranceimmo.fr La présente annonce immobilière a été rédigée sous la responsabilité éditoriale de EI Youssef ADDAHRAOUI, Agent Commercial mandataire en immobilier immatriculé au Registre Spécial des Agents Commerciaux (RSAC) du Tribunal de Commerce de Montpellier sous le numéro 490 455 284 Agent Commercial Hérault Tel: 06 74 17 00 18 , Côté France, Agence immobilière - Réseau immobilier Franco-Belge. Achat - vente - à vendre - acheter - investir *** Référence annonce : 6708 Cette annonce vous est proposée par Youssef Addahraoui - EI - NoRSAC: 490455284, Enregistré à Greffe du tribunal de commerce de Montpellier Côté France Immobilier - Réseau Immobilier Franco Belge International - Des conseillers du Nord au Sud de la France et 4 agences à votre service www.cotefranceimmo.fr - Annonce rédigée et publiée par un Agent Mandataire -





