Location Local commercial 33380, Mios france
600 € /
Mois
charges incluses
Descriptif du bien
PARC MIOS ENTREPRISES - ZAC 2000.
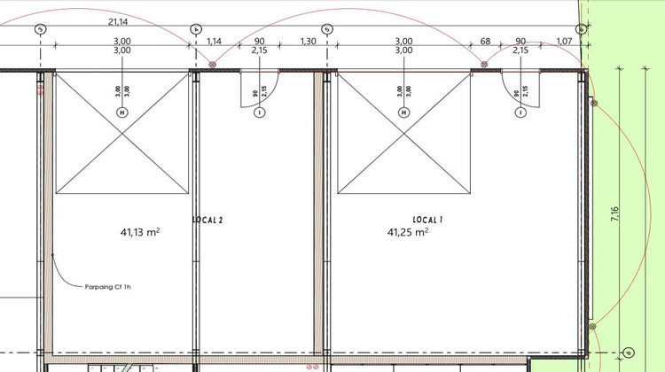
AXE IMMO PRO vous propose à la location en BEFA deux Entrepôts / Locaux d'activité neufs d'environ 62 M2 chacun sur la Zone d'activité MIOS ENTREPRISES ZAC 2000, à proximité immédiate de la sortie d'Autoroute N°23 sur L'A63 qui relie BORDEAUX au Bassin d'Arcachon et à l'Espagne.
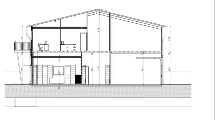
Ces Entrepôts neufs livrés brut de béton, fluides en attentes, vous proposent les prestations suivantes : Hauteur sous plafond d'environ 6 me?tre - Réseau d'eau - Installation Triphasé - Dalle béton quartz charges lourdes - 1 Porte sectionnelle motorisée et une porte de service - Isolation double peau. Mezzanine.
Excellente visibilité depuis l'A63 avec possibilité d'Affichage.
Disponibilité fin Août 2026.
Parking et aire de déchargement.
Loyer: 600.00.HT/HC/HF/Mois
Charges: Environ 42.00 .HT/Mois - 500.00 .HT/An incluant l' assurance PNE, l' entretien des espaces extérieurs et l'entretien des voiries.
Taxe Foncière: Environ 8.00 .HT/M2/An - 500.00 .HT/An.
Dépôt de garantie: 3 Mois de loyer HT.
Honoraires Agence : 20% du loyer annuel HT.
REFERENCE - LP283
CHRISTOPHE VERLOT - 06.13.39.19.53
Mail : axe-immo@outlook.com
Visitez notre site Internet : www.axeimmopro.fr
Honoraires de 1 440 HT à la charge du locataire. Provision sur charges 30 HT/mois, régularisation annuelle. Dépôt de garantie 1 800 . Non soumis au DPE. Les informations sur les risques auxquels ce bien est exposé sont disponibles sur le site Géorisques : georisques.gouv.fr.
Votre conseiller AXE-IMMO PRO / CAILLYMAPY40 : DIRECTEUR D'AGENCE - Christophe VERLOT.
visitez notre site Internet www.axeimmopro.fr
- Type de bien : Local commercial
- Surface : 41 m²
- Localisation : France - Nouvelle-Aquitaine - Gironde
- Ville : Mios
- Code postal : 33380
- Disponible le 01/06/2026
- Annonce mise à jour le 28/11/2025





