Location Local commercial 21160, Marsannay-la-Côte france
2 130 € /
Mois
charges incluses
Descriptif du bien
Au coeur d'une zone commerciale, nous vous proposons à la location plusieurs cellules au sein de l'ensemble Les Balcons Cap Sud à Marsannay-la-Côte.
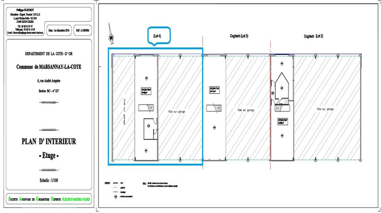
Exemple de lot disponible :
Lot 3 : Ce bâtiment est construit de plain-pied en mitoyenneté sur sa largeur est équipé de portes sectionnelles sur les autres façades. Il se compose d'un accueil, d'un bloc sanitaire et d'un bureau au RDC. A l'étage : il se compose d'une mezzanine aménageable.
Entrepôt RDC : 213 m²
Mezzanine 1er étage : 71 m²
Surface totale lot : 284 m²
Places de parking : 8
Autres lots et conditions financières :
Lot 2 : 354 m² - Cellule
Lot 4 : 352 m² - Cellule
Lot 5 : 422 m² - Cellule
Lot 11 : 139 m ² - Bureaux
Type de bail : Commercial
Loyer entrepôt : 90 HT HC / m² an parkings inclus
Loyer bureau : 100 HT HC / m² an parkings inclus
Charges : 13.13 / m²
TF : 10.19 / m²
Régime : TVA
Indexation : ILAT / ILC
DG : 3 mois de loyer HT HC
DPE en cours. Les informations sur les risques auxquels ce bien est exposé sont disponibles sur le site Géorisques : georisques.gouv.fr.
- Type de bien : Local commercial
- Surface : 284 m²
- Localisation : France - Bourgogne-Franche-Comté - Côte d'or
- Ville : Marsannay-la-Côte
- Code postal : 21160
- Annonce créée le 30/05/2025





