Location Local commercial 44390, Casson france
1 600 € /
Mois
charges incluses
Descriptif du bien
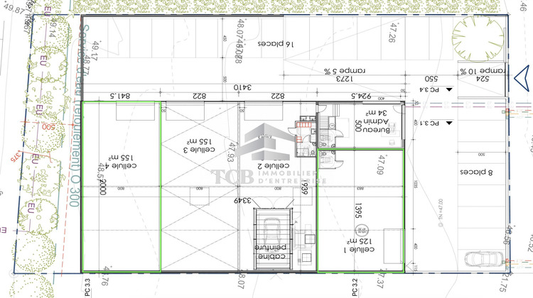
TCB Immobilier vous propose à la location 2 cellules d'activités neuves à Casson (44390) disponibles courant avril 2026 :
Cellule 1 : 125 m² + 4 places de parking ? Loyer : 750 HT HC / mois
Cellule 2 : 155 m² + 3 places de parking ? Loyer : 850 HT HC / mois
Atouts majeurs de ces locaux neufs :
Hauteur libre : 6,10 m ? idéale pour stockage, mezzanine ou engins légers
2 Porte sectionnelles motorisées : 3,50 m (H) × 4 m (L)
Équipements inclus : sanitaire (WC), menuiseries aluminium double vitrage, façade bardage moderne et esthétique
Site clos et sécurisé
3 et 4 places de parking privatives
Idéal pour jeunes entreprises, artisans, TPE/PME, stockage, atelier léger, services
Interdit : activités automobiles / réparation / carrosserie
Situation stratégique (nord de Nantes environ 20-25 min du périphérique) :
Accès rapide : 12 min de la N137 (axe Nantes ? Rennes)
Route départementale D37 (Sucé-sur-Erdre ? Nort-sur-Erdre)
Bus ligne 347 à proximité
Gare SNCF à environ 30 min (Nort-sur-Erdre / Sucé)
Conditions :
Dépôt de garantie : 3 mois de loyer HT HC
Loyers attractifs pour du neuf avec hauteur sous plafond généreuse
En Zone Ue du PLUi (Artisanat et commerce de détail, commerce de gros, cctivités de services avec l'accueil d'une
clientèle, équipements sportifs...)
Honoraires charge Preneur 30%HT du loyer annuel HHTC soit
cellule 125m2 2700HT soit 3240TTC
cellule 155m2 3060HT soit 3672TTC
cellules 1 et 2; 5760HT soit 6912TTC
Honoraires de 5 760 HT à la charge du locataire. Dépôt de garantie 4 800 . DPE en cours. Les informations sur les risques auxquels ce bien est exposé sont disponibles sur le site Géorisques : georisques.gouv.fr.
Votre conseiller TCB - IMMOBILIER D'ENTREPRISE : Associé - Gérant - Tristan COYAC
Carte T CPI44012021000000070
RCP 904045077
- Type de bien : Local commercial
- Surface : 280 m²
- Localisation : France - pays-de-la-loire - Loire Atlantique
- Ville : Casson
- Code postal : 44390
- Annonce créée le 23/01/2026


