Location Local commercial 78420, Carrières-sur-Seine france
3 447 € /
Mois
charges incluses
Descriptif du bien
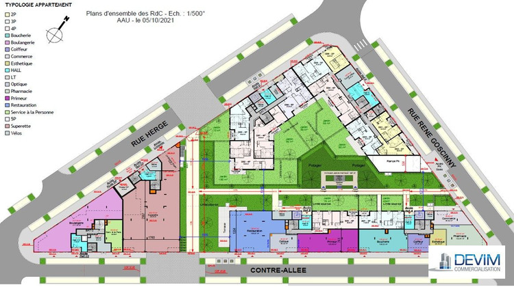
Le quartier des Alouettes, situé au Nord de Carrières-sur-Seine et à 15 minutes à pieds de la Gare du RER A « Houilles Carrières-sur-Seine » connait depuis 2014, un projet de réhabilitation d'envergure composé de deux phases principales :
Réhabilitation des bâtiments appartenant au bailleur social France Habitation 400 logements.
Destruction de plusieurs bâtiments afin d'en construire 7 nouveaux. L'ensemble des bâtiments aura été soit réhabilité, soit détruit. La zone, composée actuellement de plus de 2000 habitants, prévoit à terme d'accueillir 636 familles au travers de 380 logements rénovés et 256 logements neufs. Soit de quasiment doubler sa capacité actuelle d'habitants pour passer à près de 3 600 habitants.
Honoraires de 12 408 HT à la charge du locataire. Dépôt de garantie 10 340 . Non soumis au DPE. Les informations sur les risques auxquels ce bien est exposé sont disponibles sur le site Géorisques : georisques.gouv.fr.
Votre conseiller Devim Commercialisation : Julie Lequertier
Agent commercial (Entreprise individuelle)
- Type de bien : Local commercial
- Surface : 188 m²
- Localisation : France - ile-de-france - Yvelines
- Ville : Carrières-sur-Seine
- Code postal : 78420
- Disponible le 01/04/2027
- Annonce créée le 27/03/2026



