Location Local commercial 47290, CANCON france
800 € /
Mois
charges incluses
Descriptif du bien
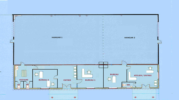
Local professionnel NEUF à CANCON, proche N21 avec accès facile pour camions, d'environ 155 m² avec son parc extérieur attenant. L'entrepôt principal de 112 m² a une grande porte et est attenant aux 2 bureaux d'une surface globale de 43 m² (WC pour personnes à mobilité réduite) Possibilité de louer l'ensemble du bâtiment d'une suface totale de 370 m² dont 103 m² de bureaux pour 1800 euros HT hors charges. Les charges comprennent la taxe foncière au prorata de la surface. Les informations sur les risques auxquels ce bien est exposé sont disponibles sur le site Géorisques : www.georisques.gouv.fr Toute activité sera étudiée par le propriétaire Local disponible Retrouvez toutes nos offres sur le site de la Maison de l'Immobilier. Avec la Maison de l'Immobilier, louez en toute sérénité !
- Type de bien : Local commercial
- DPE : A -< 51 kWh/².an
- Surface : 155 m²
- Localisation : France - Nouvelle-Aquitaine - Lot et Garonne
- Ville : CANCON
- Code postal : 47290
- Annonce créée le 18/02/2025






