Location Local commercial 01000, BOURG-EN-BRESSE france
7 700 € /
Mois
charges incluses
1 / 2
Descriptif du bien
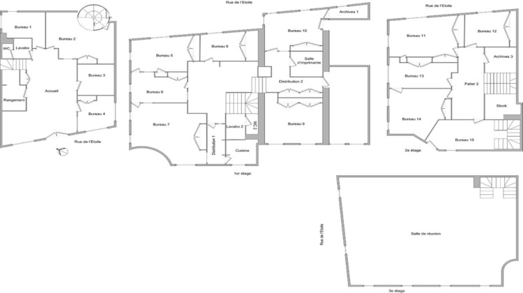
A 5 Minutes du Palais de Justice de Bourg en Bresse ; En angle de rue Commerçante : Immeuble tertiaire en R+2 de 440 M² env. plus 95 m² env. d'extension, bénéficiant d'un RDC à destination de Commerce et 7 places de parkings en sous-sol. L'immeuble de 440 M² env. pourra être loué sans l'extension ; Contacter Christian MAILLET Régie Saint-Pierre. 06.08.64.47.48
- Type de bien : Local commercial
- DPE : G -> 450 kWh/².an
- Surface : 535 m²
- Localisation : France - Auvergne-Rhône-Alpes - Ain
- Ville : BOURG-EN-BRESSE
- Code postal : 01000
- Annonce créée le 18/11/2025

