Location Local commercial 94140, Alfortville france
2 360 € /
Mois
charges incluses
Descriptif du bien
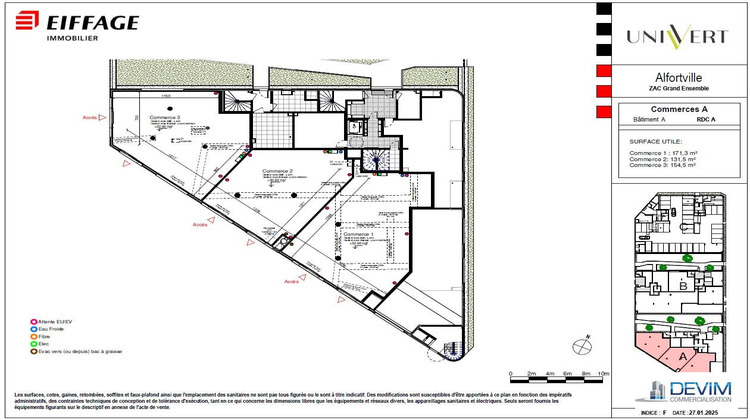
Développée sur un périmètre de 13 600 m² environ, la Zone d'Aménagement Concerté (ZAC) porte sur la requalification du centre commercial du Grand Ensemble à Alfortville et s'inscrit dans le cadre de la politique de renouvellement urbain de la commune. Ce projet vise à développer une nouvelle offre résidentielle et commerciale.
L'objectif est de désenclaver le site et créer un nouveau pôle mixte.
Le programme de l'opération prévoit la construction d'environ 9 900 m² de surface de plancher (SDP), comprenant :
La réalisation d'environ 8 300 m² SDP de logements soit un total de 145 logements environ ;
La réalisation d'environ 1 600 m² SDP de commerces et services en rez-de-chaussée.
La requalification des voiries existantes et la création d'une nouvelle voie ;
L'aménagement paysager des espaces verts et piétonniers.
Honoraires de 9 468 HT à la charge du locataire. Dépôt de garantie 7 890 . DPE en cours. Les informations sur les risques auxquels ce bien est exposé sont disponibles sur le site Géorisques : georisques.gouv.fr.
Votre conseiller Devim Commercialisation : Julie Lequertier
Agent commercial (Entreprise individuelle)
- Type de bien : Local commercial
- Surface : 132 m²
- Localisation : France - ile-de-france - Val de Marne
- Ville : Alfortville
- Code postal : 94140
- Disponible le 31/12/2025
- Annonce créée le 07/11/2025





