Location Divers 84270, Vedène france
1 900 € /
Mois
charges incluses
Descriptif du bien
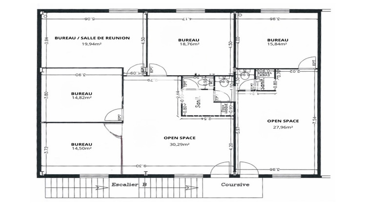
Sur la commune de Vedène, nous mettons en location un espace de travail de 153m2. Au premier et dernier étage d'une ensemble immobilier, découvrez un espace de travail fonctionnel composé d'un open space et de plusieurs bureaux et d'un espaces sanitaires. L'ensemble des locaux est climatisé. Nombreuses prises dans les bureaux, sol en béton ciré, fenêtres pvc double vitrage. 3 places de parking à usage exclusif. Petit local de stockage attenant.
DPE : C GES : B
Le loyer est de 1900 EUR HT mensuels. Charges annuelles HT : néant. Taxe foncière et TEOM : 940 EUR /an à la charge du preneur. Grantie : 2 mois de loyer HT. Honoraires d'agence dont état des lieux : 2203EUR HT à charges du preneur (et 2203EUR HT à charges du bailleur).
Si vous avez des questions, vous pouvez contacter LA BORIE IMMOBILIER SORGUES. Contactez Sarah : 06.59.44.86.70 sarah@laborie-immobilier.com www.la-borie.com
« Les informations sur les risques auxquels ce bien est exposé sont disponibles sur le site Géorisques : www.georisques.gouv.fr ». Siret 901 517 466 RC d'Avignon
- Type de bien : Divers
- DPE : C - 91 à 150 kWh/².an
- GES : B - 6 à 10 kg eq CO2/².an
- Surface : 153 m²
- Localisation : France - provence-alpes-cote-d-azur - Vaucluse
- Ville : Vedène
- Code postal : 84270
- Disponible le 12/11/2024
- Annonce créée le 05/11/2025





