Location Divers 67000, Strasbourg france
4 884 € /
Mois
charges incluses
Descriptif du bien
L'agence vous propose à la location un plateau tertiaire, dans l'hyper centre de Strasbourg.
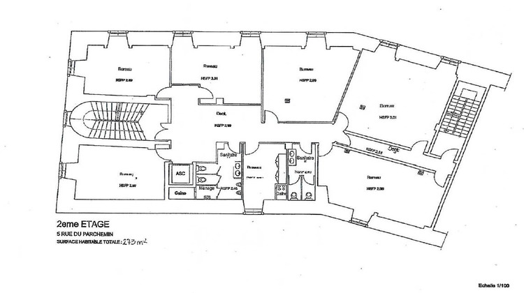
Les locaux se développent sur 273 m2, ils sont lumineux et spacieux ; vous disposerez de sept bureaux, au deuxième étage, dans un bel immeuble situé rue du parchemin à Strasbourg.
Les locaux sont pourvus d'un ascenseur, de sanitaires hommes et femmes, normes de sécurité, normes PMR en cours. Les locaux sont en état correct (sol, mur, plafonds, sanitaires).
Emplacement exceptionnel : en hyper centre de STRASBOURG. Les bureaux bénéficient d'une belle visibilité et s'insèrent dans un secteur historique.
Ville très accessible, Strasbourg possède une position avantageuse du fait de sa proximité avec l'Allemagne, avec l'aéroport d'Entzheim et son port autonome. Nombreux services aux utilisateurs. De très nombreuses pistes cyclables et un réseau de transports en commun bien développé. L'arrêt de tram le plus proche est situé à seulement 350 mètres et vous permet de vous rendre à la Gare Strasbourg TGV en 13 minutes.
Les informations sur les risques auxquels ce bien est exposé sont disponibles sur le site Géorisques : georisques.gouv.fr
Pour visiter les locaux, contactez Agnès ODRY au 07.84.92.26.47
Cette annonce est publiée par Agnès Odry Immobilier à 67520 Nordheim - RCS Saverne 832 703 870 00010.
Les informations sur les risques auxquels ce bien est exposé sont disponibles sur le site Géorisques : www.georisques.gouv.fr
- Type de bien : Divers
- DPE : E - 231 à 330 kWh/².an
- GES : E - 36 à 55 kg eq CO2/².an
- Surface : 273 m²
- Localisation : France - Grand Est - Rhin (Bas)
- Ville : Strasbourg
- Code postal : 67000
- Annonce créée le 16/07/2025




