Location Divers 44000, Nantes france
1 712 € /
Mois
charges incluses
Descriptif du bien
NANTES Centre-Ville, Bd GUIST'HAU.
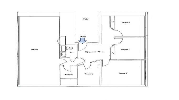
Au 1er étage avec ascenseur d'une résidence de standing des Bureaux d'une surface de 105M² se répartissant en :
1 Plateau, 3 Bureaux, Coin Archives et Local Technique, Sanitaires, 1 Cave, 1 Parking privatif
Charges comprenant l'entretien des parties communes et le chauffage collectif.
Proche :
Commerces / Restaurants / Parking aérien au pied de l'immeuble
Bus ligne 26 / 54 / C6 au pied de l'immeuble / bus direct Gare
Tramway Viarme à 650m ligne 3
Provision sur charges 236,66 HT/mois, régularisation annuelle. Dépôt de garantie 5 136 . DPE vierge. Les informations sur les risques auxquels ce bien est exposé sont disponibles sur le site Géorisques : georisques.gouv.fr.
- Type de bien : Divers
- Surface : 105 m²
- Localisation : France - pays-de-la-loire - Loire Atlantique
- Ville : Nantes
- Code postal : 44000
- Annonce mise à jour le 21/02/2025





