Location Divers 17000, La Rochelle france
1 160 € /
Mois
charges incluses
Descriptif du bien
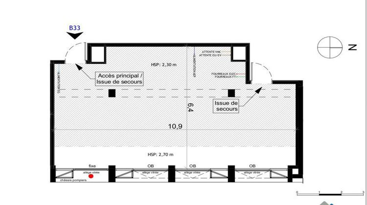
A LOUER LA ROCHELLE - ZFU dans un immeuble récent avec prestations de qualité, à proximité immédiate de la rocade et aéroport / ile de ré, bureaux neuf d'une surface de 60 m2 disposant de 2 accès indépendants. Ascenseur. WC PMR dans les parties communes. Est inclus à la location 1 place de parking. Caractéristiques techniques : climatisation réversible, système d'alarme, d'une baie de brassage (infrastructure réseau) et alimentation RJ45. Conditions financières : Bail sous seing privé, type 3/6/9 - professionnel ou bail dérogatoire, Loyer mensuel : 1 100 EUR HT + Charges : 60 EUR HT/mois. Dépôt de garantie : 2 mois de loyer HT. Disponible immédiatement, idéal pour profession libérale, activité de service, startup ou entreprise à la recherche de bureaux modernes, fonctionnels et accessibles. Frais d'agence : 30 % TTC d'un an de loyer HT, à la charge du preneur et coût de 300 EUR HT pour l'état des lieux
Une affaire d'entreprise ! Les informations sur les risques auxquels ce bien est exposé sont disponibles sur le site Géorisques : 'www.georisques.gouv.fr'.
- Type de bien : Divers
- GES : A -< 6 kg eq CO2/².an
- Surface : 60 m²
- Localisation : France - Nouvelle-Aquitaine - Charente Maritime
- Ville : La Rochelle
- Code postal : 17000
- Disponible le 09/10/2025
- Annonce créée le 15/10/2025


