Location Divers 13120, Gardanne france
860 € /
Mois
charges incluses
Descriptif du bien
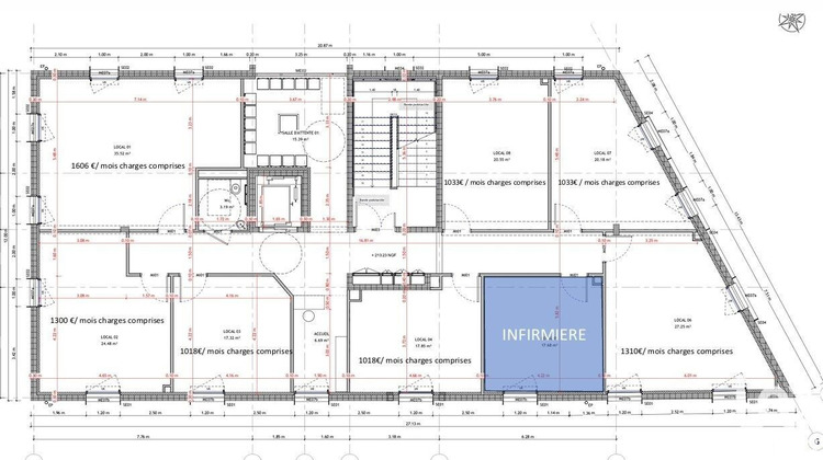
Iad France - Hélène Lazaro (06 62 17 31 33) vous propose : À louer : Plusieurs lots dans un immeuble neuf - Gardanne centre-ville
Nous proposons à la location plusieurs lots situés au sein d'un centre médical moderne à Gardanne, en plein centre-ville.
Loyer : À partir de 790 ¤ par mois
Emplacement : Idéalement situé, à proximité de commodités et de transports.
Immeuble neuf : Bâtiment conforme aux normes actuelles, offrant un cadre agréable et fonctionnel.
Ces espaces sont parfaits pour les professionnels de la santé ou toute autre activité nécessitant un environnement calme et accessible.
Pour plus d'informations, veuillez nous contacter !
Information d'affichage énergétique sur le bien associé à cette annonce : DPE NS indice 0 et GES NS indice 0. La présente annonce immobilière a été rédigée sous la responsabilité éditoriale de Mme Hélène Lazaro (ID 86496), Agent Commercial mandataire en immobilier immatriculé au Registre Spécial des Agents Commerciaux (RSAC) du Tribunal de Commerce de Salon de Provence sous le numéro 940022593
Retrouvez tous nos biens sur notre site internet. www.iadfrance.fr.
Informations LOI ALUR :
Charges : 70 ¤ /mois.
Honoraires locataire : 1 900 ¤ TTC.
Surface (arrondie) : 45 m². (gedeon_6727_31265774)
- Type de bien : Divers
- Surface : 45 m²
- Localisation : France - provence-alpes-cote-d-azur - Bouche-du-Rhone
- Ville : Gardanne
- Code postal : 13120
- Annonce créée le 22/05/2025


