Location Divers 01170, Chevry france
10 000 € /
Mois
charges incluses
Descriptif du bien
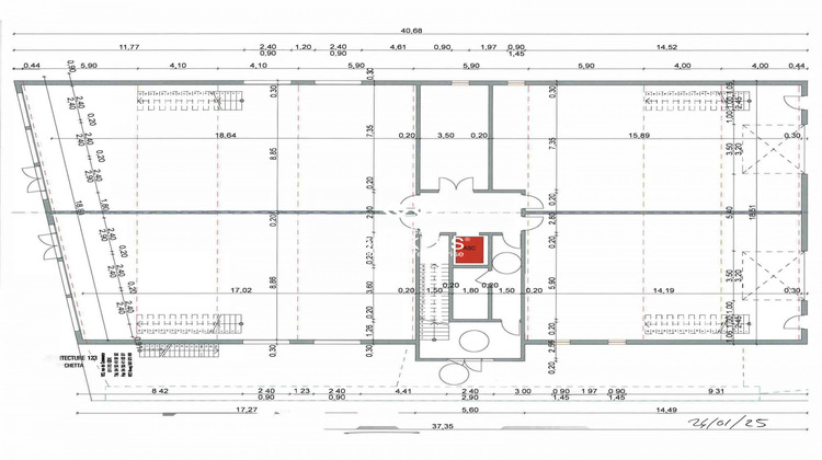
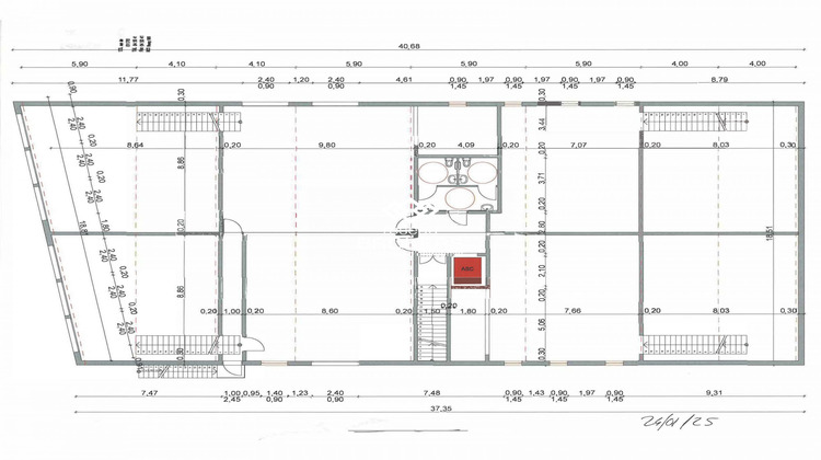
Découvrez une opportunité unique d'implantation pour votre entreprise dans la zone d'activité en plein essor de 'Les Grands Prés' à Chevry. Ce nouveau bâtiment, dont la construction débutera prochainement, offre une flexibilité exceptionnelle avec des espaces commerciaux, des ateliers et des bureaux, tous divisibles selon vos besoins.
- **Visibilité exceptionnelle** : Situé en première ligne face à la rue de la Faucille, une artère majeure reliant Gex à Saint-Genis Pouilly, votre entreprise bénéficiera d'une exposition optimale avec un passage de plus de 15 000 véhicules par jour.
- Surfaces de bureaux, 272 M2 : 172 /m² H.T./H.C. par an soit un loyer annuel de 46'800.- HT et 3'900.- HT/HC/MOIS.
- **Équipements modernes** : Le bâtiment sera équipé d'un ascenseur, d'un accès PMR, et répondra aux normes ERP pour garantir confort et sécurité.
- **Opportunité de personnalisation** : Chaque espace peut être aménagé selon vos besoins spécifiques, vous permettant de créer un environnement de travail qui reflète l'identité de votre entreprise.
Que vous soyez un créateur d'entreprise ou un acteur établi cherchant à développer votre activité, ces locaux représentent une occasion exceptionnelle de s'installer dans l'une des zones les plus dynamiques de la région. Ne manquez pas cette chance de donner à votre société une visibilité et un potentiel de croissance inégalés.
Pour plus d'informations ou pour organiser une visite, n'hésitez pas à nous contacter.
Soyez parmi les premiers à choisir votre futur espace dans ce bâtiment moderne et stratégique !
Honoraires de 24 000 HT à la charge du locataire. Dépôt de garantie 10 000 . DPE en cours. Les informations sur les risques auxquels ce bien est exposé sont disponibles sur le site Géorisques : georisques.gouv.fr.
Votre conseiller AVINIM RESEAU BROKERS : Dominique OUAYOUN
Agent commercial (Entreprise individuelle)
RSAC 844.800.292
RCP 59941057
- Type de bien : Divers
- Surface : 272 m²
- Localisation : France - Auvergne-Rhône-Alpes - Ain
- Ville : Chevry
- Code postal : 01170
- Annonce mise à jour le 10/04/2026



