Location Appartement 12000, RODEZ france
327 € /
Mois
charges incluses
1 / 9
Descriptif du bien
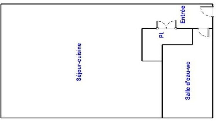
RODEZ / Quartier IUT - Université - Lycée Monteil - STUDIO MEUBLE entièrement équipé et fonctionnel avec balcon exposé Sud ! Comprenant un hall d'entrée avec placard, une pièce principale avec kitchenette équipée (frigidaire, plaque de cuisson vitrocéramique, hotte aspirante, micro-ondes, placards hauts et bas) et un balcon de 1.60 m² environ, une salle d'eau avec WC. Sans oublier son parking commun sécurisé !








