Location Appartement 34470, Pérols france
760 € /
Mois
charges incluses
1 / 6
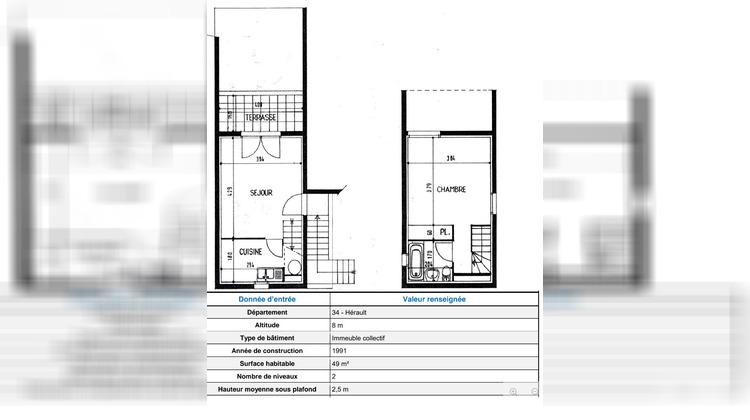
Descriptif du bien
Pérols centre, résidence sécurisée l'hacienda, au 1er et dernier étage appartement de type 2 en duplex avec 1 place de parking, séjour lumineux ouvrant sur balcon (6 m2) avec vue dégagée, cuisine semi équipée indépendante, chambre avec placard, salle de bains avec baignoire. loyer mensuel de 760.60EUR dont 30EUR de charges avec régularisation annuelle inclus caution 700EUR honnoraires d'agence 650EUR.Libre à partir du 15 janvier 2026 Pour tous renseignements contactez Franck STEF au 06x08x49x27x63





