Location Appartement 34590, Marsillargues france
957 € /
Mois
charges incluses
Descriptif du bien
Marsillargues, entre Lunel et la Grande Motte, proche Saint Laurent d'Aigouze et accès autoroute.
Quartier de la Laune, dans la résidence neuve Domaine d'Opale.
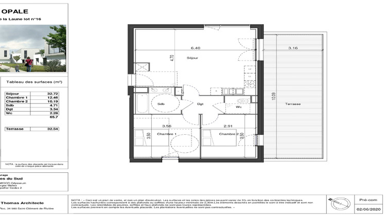
Très bel appartement T3 neuf, qui sera livré fin janvier 2026. les photos visibles sur l'annonce sont celles de l'appartement encore en chantier, prises début janvier.
Situé en 1er et dernier étage, sans ascenseur ; il offre 65,7 m2 habitables avec une grande terrasse de 32 m2. Deux parkings couverts et sécurisés en rez-de-chaussée.
Séjour avec cuisine, ouverte et semi équipée de 32,7 m2 ; deux chambres de 12,5 m2 et 10 m2, avec placards amnéagés; dont une qui accède directement à la terrasse. Salle de bain avec meuble double vasque et toilettes indépendants.
Prestations de qualité, construction à la norme RT 2012 pour de faibles dépenses d'énergie, chauffage électrique, production d'eau chaude par cumulus thermodynamique. Menuiserie PVC, ou aluminium avec volets roulants électriques, peinture lisse et carrelage.
Disponible pour le 30/01 /2026..Loyer mensuel HC de 870EUR + provisions mensuelles avec régularisation de 87EUR pour les charges (copropriété, eau, entretien cumulus, ordures ménagères) , soit 957EUR CC au total. Caution 870EUR. Honoraires agence charge locataire 722EUR TTC.
Appartement sous dispositif PINEL zone B1 (plafond de ressources des locataires, en fonction du nombre d'occupants)
Références sérieuses exigées. 1ère demande d'information UNIQUEMENT PAR MAIL. 1 dossier complet vous sera envoyé avec photos et vidéo du logement. Exclusivité Prodeom Gestion.





