Location Appartement 35650, LE RHEU france
695 € /
Mois
charges incluses
Descriptif du bien
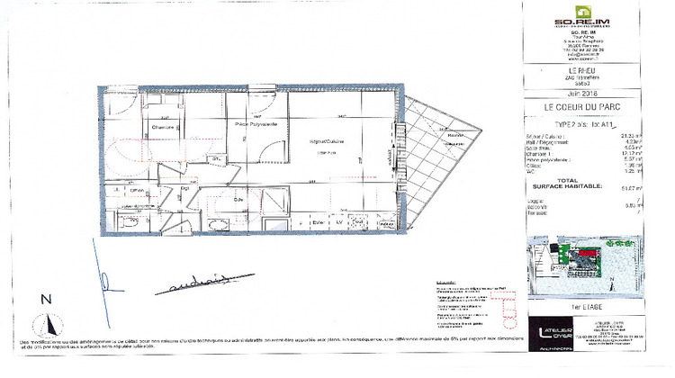
Vezin Immobilier - A 15 mn de Rennes, à 800 m du bourg de Le Rheu, dans une petite résidence avec ascenseur, à louer agréable T2 bis au 1er étage de 51 m2 avec un balcon. Il comprend, une entrée, un salon-séjour avec une cuisine ouverte aménagée et équipée (meubles hauts et bas, four, plaques vitrocéramique, hotte) donnant sur un balcon (6.8 m2), une chambre (12.1 m2), une pièce polyvalente pour un bureau, une salle d'eau (meuble sous-vasque, receveur de douche et sèche serviettes), un cellier avec branchement machine à laver et un wc séparé. Chauffage individuel gaz. Une place de parking aérien. Disponible à partir du 15 avril 2026. Loyer : 660 euros + charges : 35 euros. Honoraires d'agence à la charge du locataire : 554 euros. Dépôt de garantie : 660 euros. A découvrir sur notre site internet. Contact : 02 99 64 51 20
- Type de bien : Appartement
- DPE : B - 51 à 90 kWh/².an
- Surface : 51 m²
- Localisation : France - Bretagne - Ile et Vilaine
- Ville : LE RHEU
- Code postal : 35650
- Annonce créée le 24/03/2026






