Location Appartement 28000, Chartres france
590 € /
Mois
charges incluses
Descriptif du bien
A louer T2 Meublé - à deux pas de la gare de Chartres !
Bien Serein Immobilier vous propose un appartement T2 spacieux et entièrement meublé, idéalement situé à proximité du coeur de Chartres, à seulement quelques pas de la gare..
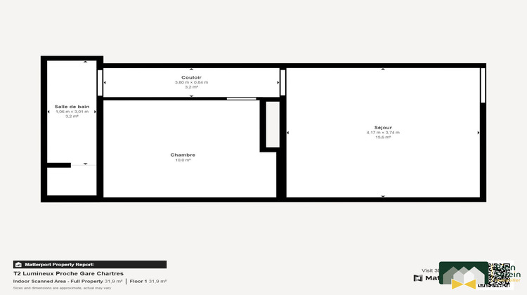
Détails de l'appartement (31,94 m²) :
- Pièce de vie de 15 m² avec cuisine ouverte
- Chambre
- Salle d'eau avec WC
Côté confort :
- Très Lumineux
- Cuisine aménagée et équipée
- Entièrement rénové
- Ouvertures en PVC avec double vitrage
L'emplacement :
La proximité des commodités est un véritable atout : à seulement 5 minutes à pied, vous trouverez une maternelle, une école élémentaire, deux commerces d'alimentation générale, cinq restaurants et un parc. L'hôpital et deux médecins généralistes sont accessibles en 5 minutes en voiture.
Conditions de location :
- Loyer : 590/mois charges comprises (dont 10/mois de charges pour la taxe d'ordure ménagère)
- Dépot de garantie = 2 mois de loyer hors charges
?Interéssé(e) ?Voici comment procéder :
1) Visite virtuelle : Découvrez l'appartement comme si vous y étiez.
2) Dépot dossier locataire : Déposez votre dossier 100% dématérialisé directement sur l'annonce de notre site internet Bien Serein immobilier
3) Acceptation dossier : Nous vous contactons dans les 24/48h pour organiser une visite.
4) Visite : Nous organisons les visites par ordre de dossier accepté,
N'hésitez pas à contacter votre agent au Noeud Pap si vous avez des questions complémentaire.
Bien Serein immobilier, à vos côtés pour un projet maitrisé !
Honoraires de 351 TTC à la charge du locataire comprenant 96 TTC pour l'état des lieux. Loyer de base 580 /mois. Provision sur charges 10 /mois, régularisation annuelle. Dépôt de garantie 1 160 . Logement à consommation énergétique excessive : Classe énergie F, Classe climat C La loi impose que le niveau de performance énergétique (DPE) du bien immobilier, actuellement de classe F, soit compris, à compter du 1er janvier 2028, entre la classe A et la classe E. Montant moyen estimé des dépenses annuelles d'énergie pour un usage standard, établi à partir des prix de l'énergie de l'année 2021 : entre 1050.00 et 1470.00 . Les informations sur les risques auxquels ce bien est exposé sont disponibles sur le site Géorisques : georisques.gouv.fr.
- Type de bien : Appartement
- DPE : F - 331 à 450 kWh/².an
- GES : C - 11 à 20 kg eq CO2/².an
- Surface : 31 m²
- Localisation : France - centre-val-de-loire - Eure et Loir
- Ville : Chartres
- Code postal : 28000
- Annonce créée le 20/03/2026




