Location Appartement 93000, BOBIGNY france
1 199 € /
Mois
charges incluses
Descriptif du bien
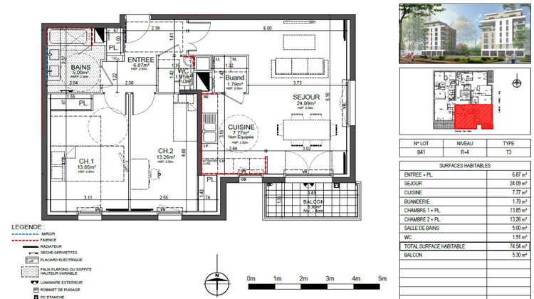
Pas de frais d'agence, Bobigny, dans un immeuble de standing, appartement neuf de type T3 d'une surface de 74,54m² localisé dans dans la rue OUM KALSOUM, Il se compose de deux chambres, d un séjour, d'une cuisine, d'une salle de bain et de WC séparés. Disposant de nombreux rangements, il sera parfait pour une famille ou pour un couple. Localisé à 10 min à pied de la ligne 5 du métro Bobigny- Pablo-Picasso, vous pourrez facilement vous rendre sur Paris. A proximité des différentes commodités (pharmacie, boulangerie, supermarché) vous ne manquerez de rien. Si vous avez des enfants, ce logement se trouve également à coté d'une école primaire, d'un collège et d'un lycée. Enfin, une place de parking complète ce logement. N'attendez-plus et venez le visiter ! Logement soumis à conditions. NB : - Les photos ne sont pas contractuelles et correspondent à un autre logement neuf de la résidence TOUT DOSSIER INCOMPLET NE SERA PAS ETUDIE Liste de documents à fournir (Par locataire et pour chaque garant): o Livret de Famille o Pièce d'identité o Trois dernières quittances de loyers o Justificatif de domicile pour les personnes hébergées o Trois derniers bulletins de salaire o Deux dernières feuilles d'imposition o Contrat du travail ou Attestation de l'employeur datant de moins de 30 jours (Précisant la date d'embauche, le poste et si la personne est en période d'essai ou préavis de licenciement ou démission) o Dernière facture EDF ou Taxe d'habitation o Relevé d'Identité Bancaire o Dernier talon d'allocations familiales Vous devez présenter les originaux à l'agence accompagnés des photocopies. NB : Si vous déposez votre dossier à l'agence, merci de mettre vos noms, coordonnées téléphoniques, la ville du logement demandé ainsi que montant du loyer charges comprises.
- Type de bien : Appartement
- DPE : B - 51 à 90 kWh/².an
- GES : C - 11 à 20 kg eq CO2/².an
- Surface : 75 m²
- Localisation : France - ile-de-france - Seine Saint Denis
- Ville : BOBIGNY
- Code postal : 93000
- Disponible le 28/02/2026
- Annonce créée le 03/03/2026









