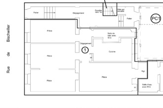
STRASBOURG (67) Local commercial
4 166 € / mois
Charges comprises
160 m²
Pro / Agence
Voir l'annonce


