Vente Appartement 67117, Ittenheim france 303 000 €
Descriptif du bien
Situé à Handschuheim, cet appartement neuf bénéficie d'un cadre de vie paisible et convivial. À moins de vingt minutes de Strasbourg et à côté du village d'Ittenheim, Handschuheim offre à ses habitants un environnement calme et agréable.
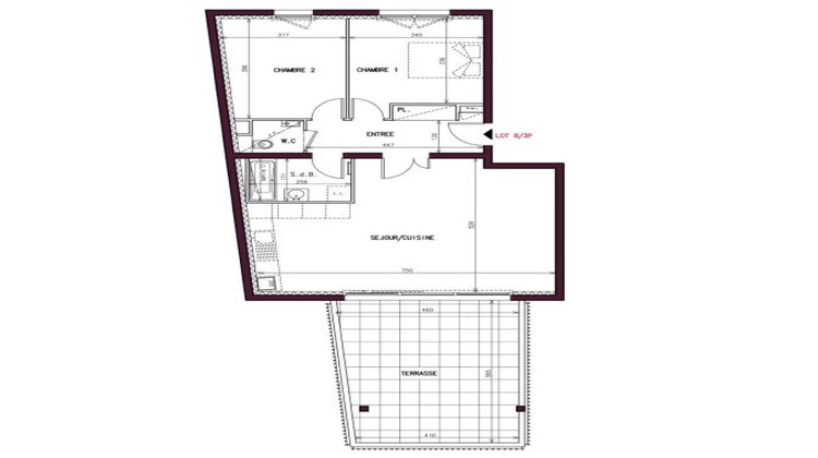
Cet appartement moderne et fonctionnel d'une surface habitable d'environ 72 m², avec chauffage au sol, se compose d'un grand salon / séjour avec cuisine ouverte, deux chambres, une salle de bain et un WC séparé, offrant un bel espace de vie. Il bénéficie également d'une terrasse spacieuse de 24 m², idéale pour profiter des beaux jours en extérieur. Les finitions sur mesure sont à choisir par les futurs acquéreurs.
De plus, le bien dispose d'un garage et d'une place de stationnement, offrant un confort supplémentaire.
N'attendez pas pour me contacter et organiser votre visite !
Le bien comprend 3 lots, et il est situé dans une copropriété de 39 lots (les charges courantes annuelles moyennes de copropriété sont de 1299 ¤ et le syndicat des copropriétaires ne fait pas l'objet d'une procédure citée à l'article L. 721-1 du code de la construction et de l'habitation).
Les informations sur les risques auxquels ce bien est exposé sont disponibles sur le site Géorisques : www.georisques.gouv.fr
Prix de vente : 303 000 ¤
Honoraires charge vendeur
Contactez votre conseiller SAFTI : Flavien BOURASSIN, Tél. : 06 70 13 88 36, E-mail : flavien.bourassin@safti.fr - EI - Agent commercial immatriculé au RSAC de Strasbourg sous le numéro 943983304.
Informations LOI ALUR :
Soumis au régime de copropriété.
Nombre de lots : 39.
Quote part annuelle(moyenne) : 1299 euros.
Honoraires charge vendeur. (gedeon_26118_32401668)
- Type de bien : Appartement
- Surface : 72 m²
- Localisation : France - Grand Est - Rhin (Bas)
- Ville : Ittenheim
- Code postal : 67117
- Annonce mise à jour le 19/02/2026


